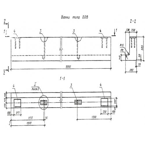
БОВ балки обвязочные

Чертеж изделия:
Характеристики изделия:
ПараметрЗначение
длина5950 мм
ширина380 мм
высота585 мм
масса2450 кг
нормативный документГОСТ 24893-81

БОВ Балки обвязочные с выступом в виде консоли ГОСТ 24893-81.