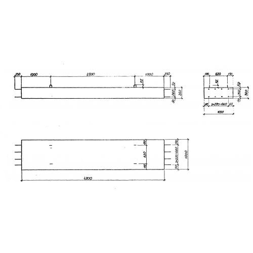
ВП 49

Чертеж изделия:
Характеристики изделия:
ПараметрЗначение
длина4900 мм
ширина1000 мм
высота360 мм
масса4410 кг
нормативный документАльбом РК 2303-86

ВП 49  Верхняя плита (плита перекрытия) с индивидуальной технологической оснасткой Альбом РК 2303-86.