БФ 47
Характеристики изделия:
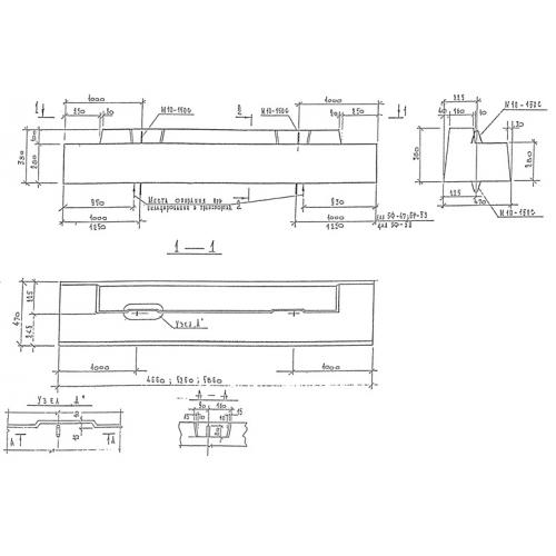
| Параметр | Значение |
|---|---|
| длина | 4660 мм |
| ширина | 470 мм |
| высота | 380 мм |
| масса | 1600 кг |
| нормативный документ | Альбом РС 1251-93 |
Цена:
Рассчитать стоимостьБФ 47 Балки фундаментные Альбом РС 1251-93.
| Параметр | Значение |
|---|---|
| длина | 4660 мм |
| ширина | 470 мм |
| высота | 380 мм |
| масса | 1600 кг |
| нормативный документ | Альбом РС 1251-93 |
БФ 47 Балки фундаментные Альбом РС 1251-93.
