Ф3

Чертеж изделия:
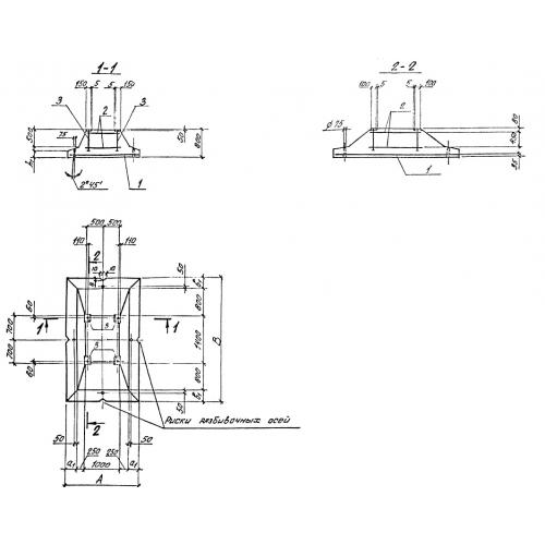
Характеристики изделия:
ПараметрЗначение
длина2100 мм
ширина3600 мм
высота800 мм
вес8750 кг
серия0-221-84

Ф3 Плиты фундаментные по серии 0-221-84.