1КБ 42 колонны

Чертеж изделия:
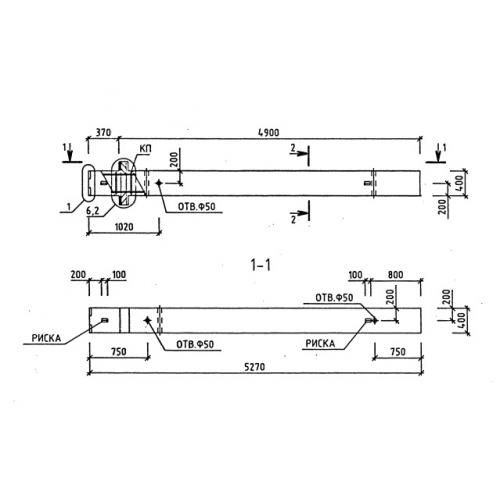
Характеристики изделия:
ПараметрЗначение
длина5270 мм
ширина400 мм
высота400 мм
масса2107,5 кг
нормативный документСерия 1.020-1/87

1КБ 42 Колонны бесстыковые Серия 1.020-1/87.