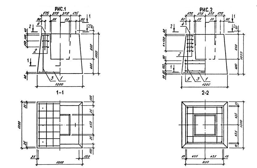
2Ф 12.11

Чертеж изделия:
Характеристики изделия:
ПараметрЗначение
длина1200 мм
ширина1200 мм
высота1050 мм
масса2490 кг
нормативный документСерия 1.020.1-3пв

2Ф 12.11  Фундаменты Серия 1.020.1-3пв.