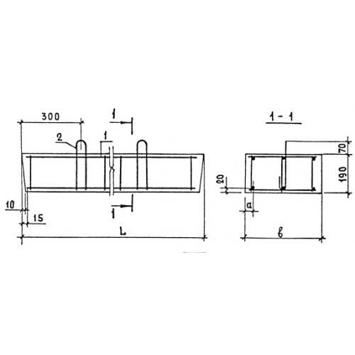
10ПП 30 перемычки плитные

Чертеж изделия:
Характеристики изделия:
ПараметрЗначение
длина2980 мм
ширина510 мм
высота190 мм
масса722 кг
нормативный документСерия 1.038.1-1

10ПП 30  Железобетонные перемычки плитного типа Серия 1.038.1-1.