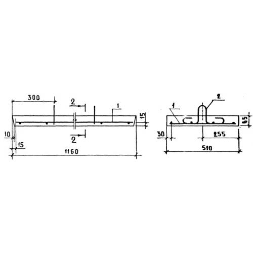
4ПП 12 перемычки плитные

Чертеж изделия:
Характеристики изделия:
ПараметрЗначение
длина1160 мм
ширина510 мм
высота65 мм
масса95 кг
нормативный документСерия 1.038.1-1

4ПП 12  Железобетонные перемычки плитного типа Серия 1.038.1-1.