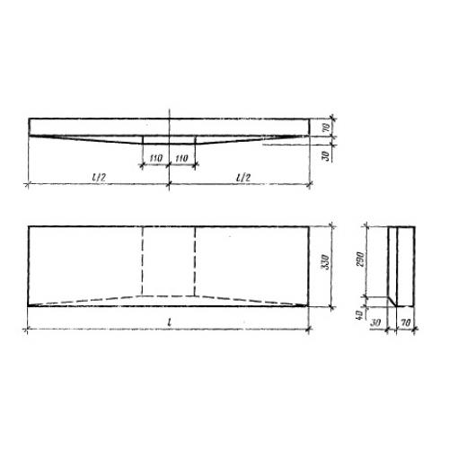
ЛСС 15

Чертеж изделия:
Характеристики изделия:
ПараметрЗначение
длина1500 мм
ширина330 мм
высота100 мм
вес108 кг
серия1.055.1-1

ЛСС 15 Ступени плоские для сквозных лестничных маршей по серии 1.055.1-1.