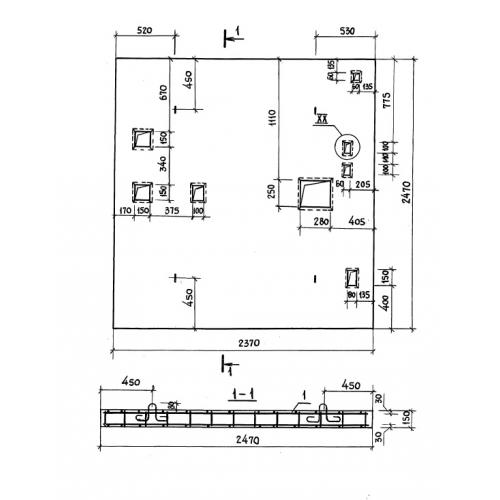
ПЛ 100-24

Чертеж изделия:
Характеристики изделия:
ПараметрЗначение
длина2370 мм
ширина2470 мм
высота150 мм
вес2130 кг
серия1.089.1-2

ПЛ 100-24 Плиты перекрытия над шахтой пассажирского лифта по серии 1.089.1-2.