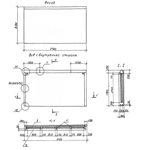
НЦ 38.22.30
Характеристики изделия:
| Параметр | Значение |
|---|---|
| длина | 3760 мм |
| ширина | 300 мм |
| высота | 2150 мм |
| вес | 4100 кг |
| серия | 1.100.1-7 |
Цена:
Рассчитать стоимостьНЦ 38.22.30 Наружная цокольная стеновая панель по серии 1.100.1-7.
| Параметр | Значение |
|---|---|
| длина | 3760 мм |
| ширина | 300 мм |
| высота | 2150 мм |
| вес | 4100 кг |
| серия | 1.100.1-7 |
НЦ 38.22.30 Наружная цокольная стеновая панель по серии 1.100.1-7.
