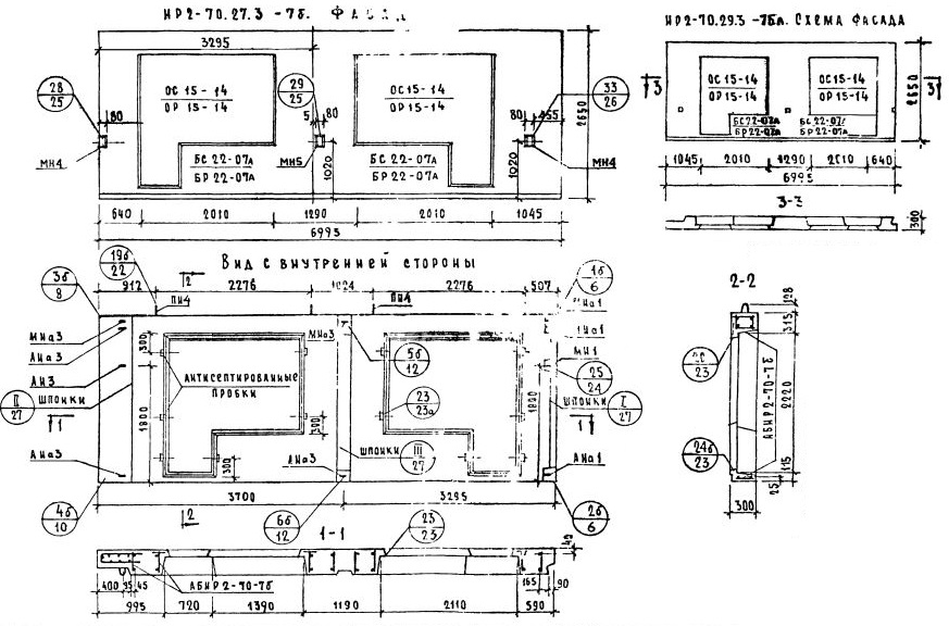
НР2-70.27.3-7бл

Чертеж изделия:
Характеристики изделия:
ПараметрЗначение
Длина6995 мм
Ширина300 мм
Высота2650 мм
Масса5150 кг
Нормативный документСерия 1.132-1

НР2-70.27.3-7бл   Наружная стеновая панель рядовая по Серии 1.132-1.