1БНУ 10.27.50

Чертеж изделия:
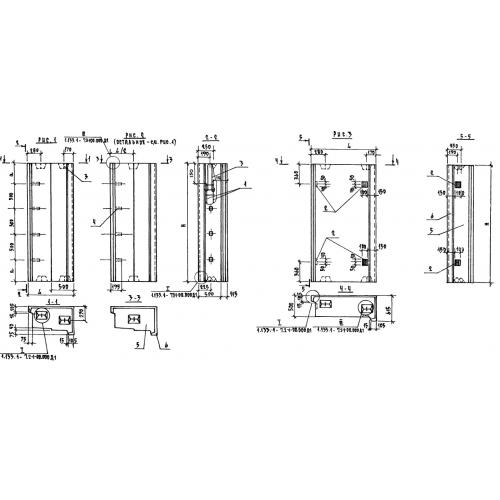
Характеристики изделия:
ПараметрЗначение
длина1065 мм
ширина500 мм
высота2680 мм
вес1750 кг
серия1.133.1-7

1БНУ 10.27.50 Блоки наружных стен простеночные угловые по серии 1.133.1-7.