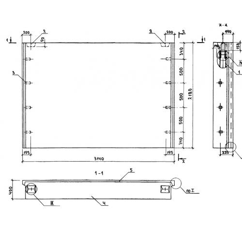
1БН 31.22.40

Чертеж изделия:
Характеристики изделия:
ПараметрЗначение
длина3140 мм
ширина400 мм
высота2180 мм
вес2880 кг
серия1.133.1-7

1БН 31.22.40 Блоки  простеночные рядовые  наружных стен по серии 1.133.1-7.