КП 8.15.8

Чертеж изделия:
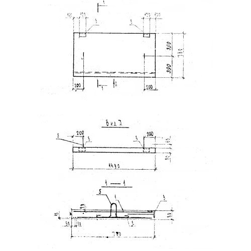
Характеристики изделия:
ПараметрЗначение
длина780 мм
ширина1490 мм
высота80 мм
масса230 кг
нормативный документСерия 1.137.1 КЛ-3

КП 8.15.8   Карнизные плиты Серия 1.137.1 КЛ-3.