1ПР 24
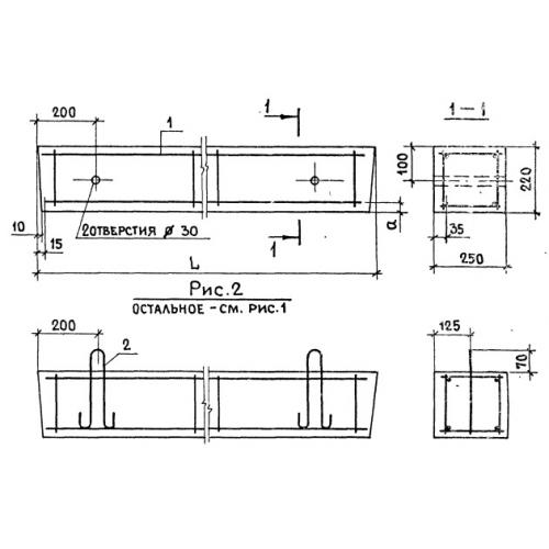
Характеристики изделия:
| Параметр | Значение |
|---|---|
| длина | 2460 мм |
| ширина | 250 мм |
| высота | 220 мм |
| вес | 338 кг |
| серия | 1.138-10 |
Цена:
Рассчитать стоимость1ПР 24 Перемычки брусковые по серии 1.138-10.
| Параметр | Значение |
|---|---|
| длина | 2460 мм |
| ширина | 250 мм |
| высота | 220 мм |
| вес | 338 кг |
| серия | 1.138-10 |
1ПР 24 Перемычки брусковые по серии 1.138-10.
.jpg)