Б 31

Чертеж изделия:
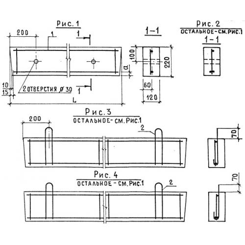
Характеристики изделия:
ПараметрЗначение
длина3100 мм
ширина120 мм
высота220 мм
вес205 кг
серия1.139-1

Б 31 Перемычки брусковые по серии 1.139-1.