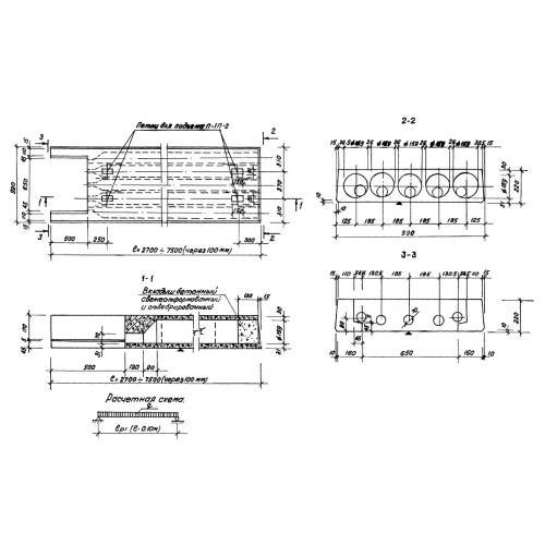
КНК 51.10

Чертеж изделия:
Характеристики изделия:
ПараметрЗначение
длина5100 мм
ширина990 мм
высота220 мм
вес1435 кг
серия1.141 КР-1

КНК 51.10 Панель с консольными выпускными ребрами. Панели перекрытия многопустотные по серии 1.141 КР-1.