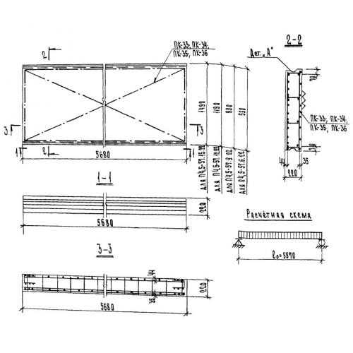
П 57.6.22

Чертеж изделия:
Характеристики изделия:
ПараметрЗначение
длина5680 мм
ширина590 мм
высота220 мм
вес920 кг
серия1.143-4

П 57.6.22 Панели перекрытия сплошные по серии 1.143-4.