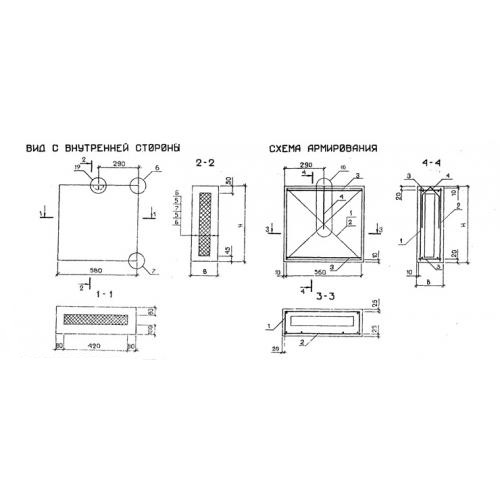
ПСТ 6.18.3.0 панели стеновые

Чертеж изделия:
Характеристики изделия:
ПараметрЗначение
длина580 мм
ширина300 мм
высота1785 мм
масса430 кг
нормативный документСерия 1.232.1-7

ПСТ 6.18.3.0  Панели стеновые трехслойные (простеночные) Серия 1.232.1-7.