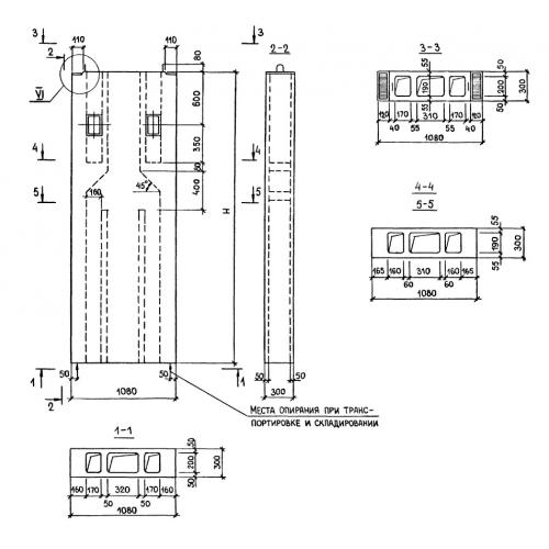
ВВС 11.20

Чертеж изделия:
Характеристики изделия:
ПараметрЗначение
длина1080 мм
ширина300 мм
высота1980 мм
вес533 кг

ВВС 11.20 Вентиляционные блоки вытяжные самонесущие по серии 1.234.8-1.