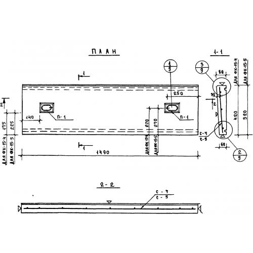
ФК 15-4

Чертеж изделия:
Характеристики изделия:
ПараметрЗначение
длина1490 мм
ширина420 мм
высота80 мм
вес100 кг
серия1.269-1

УФК 15-4 Фризовые камни угловые по серии 1.269-1.