СД 80
Характеристики изделия:
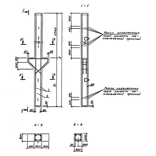
| Параметр | Значение |
|---|---|
| длина | 8000 мм |
| ширина | 1000 мм |
| высота | 400 мм |
| вес | 3400 кг |
| серия | 1.411.1-10.93 |
Цена:
Рассчитать стоимостьСД 80 Сваи двухконсольные по серии 1.411.1-10.93.
| Параметр | Значение |
|---|---|
| длина | 8000 мм |
| ширина | 1000 мм |
| высота | 400 мм |
| вес | 3400 кг |
| серия | 1.411.1-10.93 |
СД 80 Сваи двухконсольные по серии 1.411.1-10.93.
