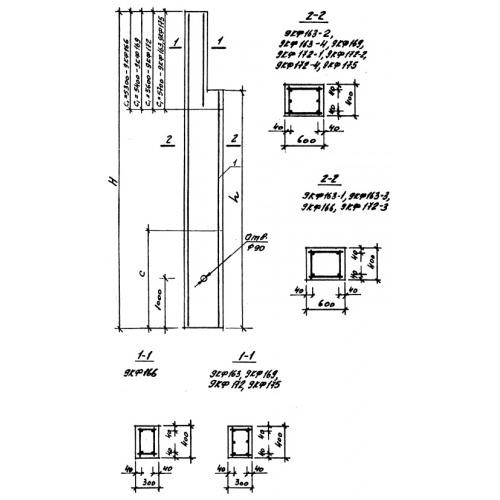
9КФ 163 колонны

Чертеж изделия:
Характеристики изделия:
ПараметрЗначение
длина16300 мм
ширина400 мм
высота600 мм
масса9780 мм
нормативный документСерия 1.427.1-3

9КФ 163  Колонны фахверка Серия 1.427.1-3.