Л 38

Чертеж изделия:
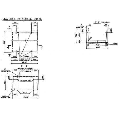
Характеристики изделия:
ПараметрЗначение
длина2970 мм
ширина4000 мм
высота1700 мм
масса9380 кг
нормативный документСерия 3.006.1-2/82

Л 38  Лотки теплотрасс Серия 3.006.1-2/82.