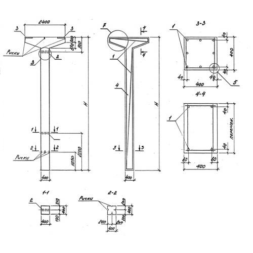
К 21

Чертеж изделия:
Характеристики изделия:
ПараметрЗначение
длина8000 мм
ширина2400 мм
высота2400 мм
масса4200 кг
нормативный документСерия 3.015-16.94

К 21  Колонны бетонные Серия 3.015-16.94.