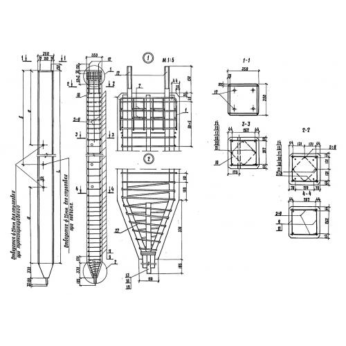
С 10 свая

Чертеж изделия:
Характеристики изделия:
ПараметрЗначение
длина10000 мм
ширина350 мм
высота350 мм
масса3130 кг
нормативный документСерия 3.501.1-130

С 10  Сваи по Серии 3.501.1-130.