Б 115

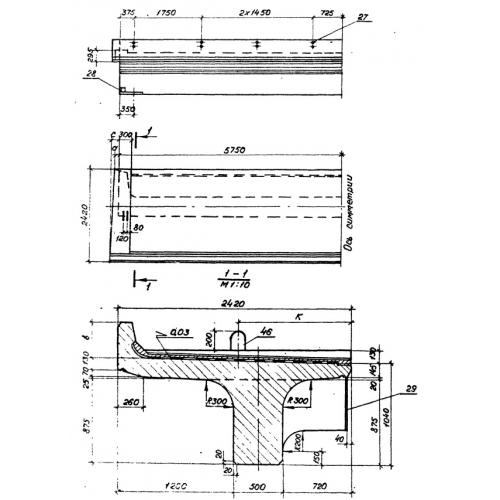
Чертеж изделия:
Характеристики изделия:
ПараметрЗначение
длина11500 мм
ширина2420 мм
высота1650 мм
вес32700 кг
Серия3.501.1-146

Б 115 Балки ребристые пролетных строений по Серии 3.501.1-146.