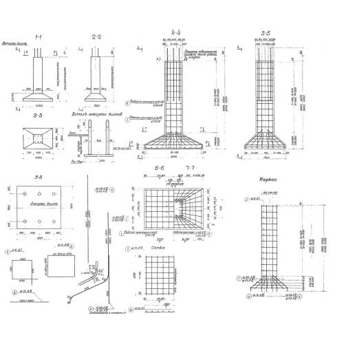
Б 1-3.0
Характеристики изделия:
| Параметр | Значение |
|---|---|
| длина | 2000 мм |
| ширина | 1400 мм |
| высота | 3000 мм |
| вес | 4925 кг |
| серия | 3.501.2-123 |
Цена:
Рассчитать стоимостьБ 1-3.0 Фундаментные блоки по серии 3.501.2-123.
| Параметр | Значение |
|---|---|
| длина | 2000 мм |
| ширина | 1400 мм |
| высота | 3000 мм |
| вес | 4925 кг |
| серия | 3.501.2-123 |
Б 1-3.0 Фундаментные блоки по серии 3.501.2-123.
