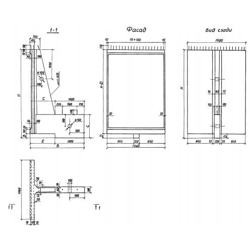
БТ 7
Характеристики изделия:
| Параметр | Значение |
|---|---|
| длина | 2650 мм |
| ширина | 1980 мм |
| высота | 6850 кг |
| вес | 7050 кг |
| серия | 3.503.1-67 |
Цена:
Рассчитать стоимостьБТ 7 Блоки контрфорсные таврового сечения по серии 3.503.1-67.
| Параметр | Значение |
|---|---|
| длина | 2650 мм |
| ширина | 1980 мм |
| высота | 6850 кг |
| вес | 7050 кг |
| серия | 3.503.1-67 |
БТ 7 Блоки контрфорсные таврового сечения по серии 3.503.1-67.
