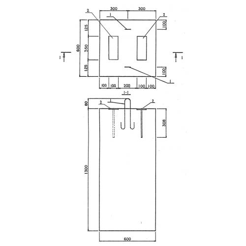
Ф 60.60.130 фундамент

Чертеж изделия:
Характеристики изделия:
ПараметрЗначение
длина600 мм
ширина600 мм
высота1300 мм
вес1175 кг
нормативный документСерия 3.503.1-96

Ф 60.60.130 Фундамент по Серии 3.503.1-96.