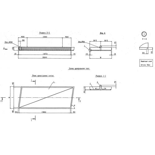
ПТК 200.75.15 Плиты тротуарные косые

Чертеж изделия:
Характеристики изделия:
ПараметрЗначение
длина2000 мм
ширина750 мм
высота150 мм
вес550 кг
нормативный документСерия 3.503.1-96

ПТК 200.75.15 Плиты  тротуарные косые по Серии 3.503.1-96.