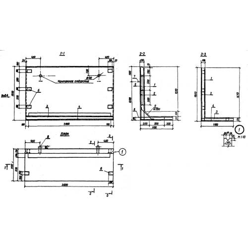
ОГ-18

Чертеж изделия:
Характеристики изделия:
ПараметрЗначение
длина3000 мм
ширина1100 мм
высота1800 мм
масса2750 кг
нормативный документСерия 3.820-6

ОГ-18   Открылки Г-образные портального оголовка по Серии 3.820-6.