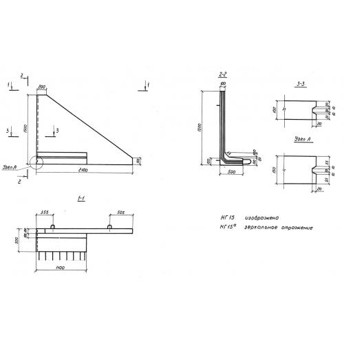
НГ 15

Чертеж изделия:
Характеристики изделия:
ПараметрЗначение
длина2100 мм
ширина680 мм
высота1500 мм
вес650 кг
серия3.820.1-39

НГ 15 Г-образные конструкции с "ныряющей" вертикальной стенкой многоцелевого назначения  по серии 3.820.1-39.