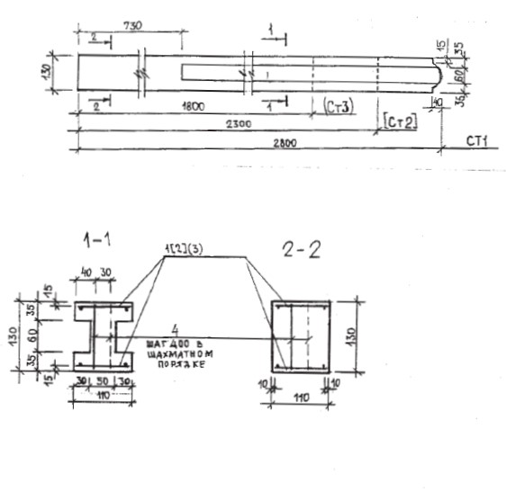
СТ-3

Чертеж изделия:
Характеристики изделия:
ПараметрЗначение
Длина L1800 мм
Ширина В110 мм
Высота Н130 мм
Вес55 кг
СерияБ3.017.1-1
Норма погрузки на машину (20тн)360 шт
Вагонная норма погрузки-

Столбы забора СТ 3 применяются совместно с панелями ограждения, изготовленными по серии Б 3.017.1-1.