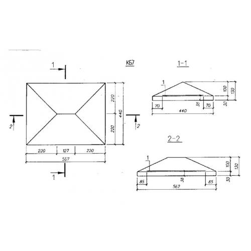
КБ 7 крышка бетонная

Чертеж изделия:
Характеристики изделия:
ПараметрЗначение
длина567 мм
ширина440 мм
высота130 мм
масса40 кг
нормативный документСерия Б 3.300.1-5.04

КБ 7 Крышки бетонные по Серии Б 3.300.1-5.04.