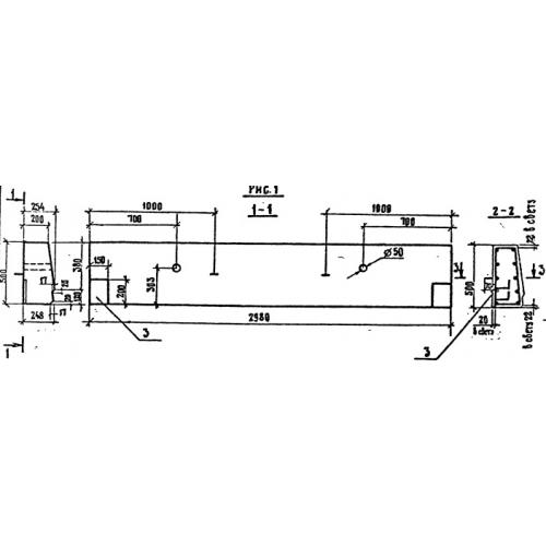
БО
Характеристики изделия:
| Параметр | Значение |
|---|---|
| длина | 5950 мм |
| ширина | 380 мм |
| высота | 490 мм |
| вес | 2000 кг |
| серия | КЭ 01-14 |
Цена:
Рассчитать стоимостьБО Балки обвязочные по серии КЭ 01-14.
| Параметр | Значение |
|---|---|
| длина | 5950 мм |
| ширина | 380 мм |
| высота | 490 мм |
| вес | 2000 кг |
| серия | КЭ 01-14 |
БО Балки обвязочные по серии КЭ 01-14.
