ПНТП
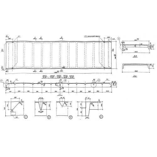
Характеристики изделия:
| Параметр | Значение |
|---|---|
| длина | 11960 мм |
| ширина | 2980 мм |
| высота | 450 мм |
| вес | 6800 кг |
| серия | ПК 01-100/62 |
Цена:
Рассчитать стоимостьПНТП Плиты ребристые по серииПК 01-100/62.
| Параметр | Значение |
|---|---|
| длина | 11960 мм |
| ширина | 2980 мм |
| высота | 450 мм |
| вес | 6800 кг |
| серия | ПК 01-100/62 |
ПНТП Плиты ребристые по серииПК 01-100/62.
.jpg)