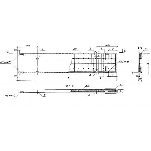
ПС 640.180.10

Чертеж изделия:
Характеристики изделия:
ПараметрЗначение
длина6370 мм
ширина100 мм
высота1785 мм
вес2850 кг
Шифр111-83

ПС 640.180.10 Панели стеновые по Шифру 111-83.