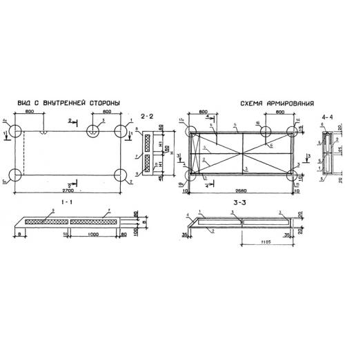
ПСТ 27.15.3.5

Чертеж изделия:
Характеристики изделия:
ПараметрЗначение
длина2700 мм
ширина350 мм
высота1485 мм
масса1650 кг
нормативный документШифр М25.13/98

ПСТ 27.15.3.5 Панели стеновые трёхслойные по Шифру М25.13/98.