Б 24-20-7.5
| Параметр | Значение |
|---|---|
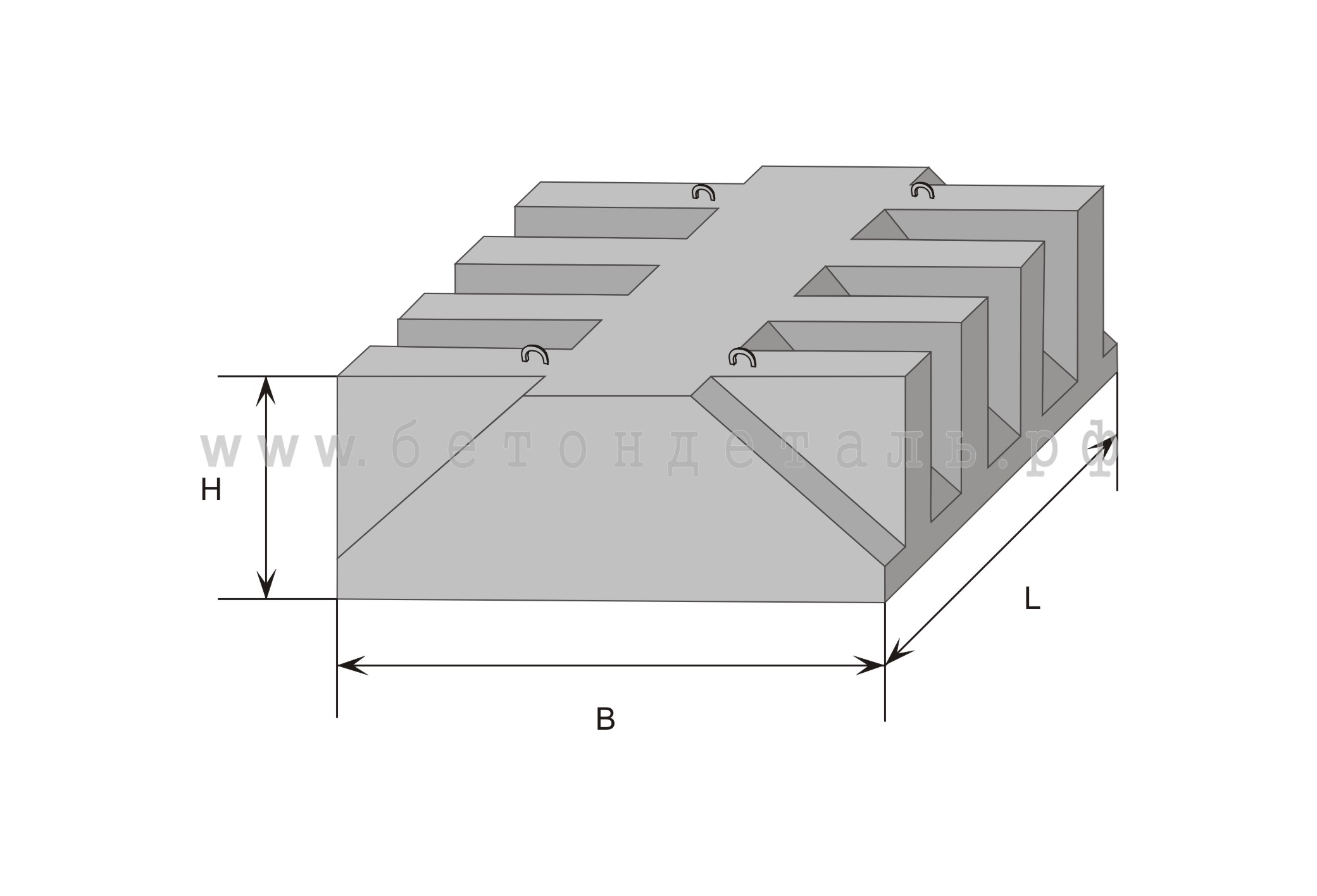
| длина | 2400 мм |
| ширина | 2000 мм |
| высота | 800 мм |
| вес | 4100 кг |
| серия | 709-9-126.93 |
| Норма погрузки на машину (20тн) | 5 |
Краткая информация
Шпальные блоки для повышенных путей Б 24-20-7.5 - это железобетонные изделия, которые применяются при сборке железнодорожного полотна, а также для перемещения и выгрузки вагонов с сыпучими грузами. Преимущество использования данного изделия заключается в его способности к самоочистке и возможности выдерживать интенсивные нагрузки. Шпальные блоки долговечны, срок их эксплуатации - более 50 лет.
Производство
Производство шпальных блоков проходит жесткий контроль качества. Изделия должны отвечать высоким показателям по морозостойкости и водонепроницаемости, устойчивости к высоким нагрузкам. Для этого при изготовлении используется бетон повышенной прочности со специальными добавками для повышения технических свойств массы, а так же выполняется армирование сталями класса A III.
Маркировка
Марка шпалы состоит из двух буквенно-цифровых групп, разделенных дефисом. Первая группа содержит обозначение типа блок шпальный. Во второй группе указывают через дефис размеры изделия в дм.
Транспортировка и хранение
Изделия укладываются штабелями с использование деревянных подкладок толщиной 30 см.
