Б 18

Чертеж изделия:
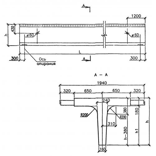
Характеристики изделия:
ПараметрЗначение
длина18000 мм
ширина1490 мм
высота1080 мм
вес19400 кг
серияТУ 5851-008-01388383-2002

Б 18 Балки пролетного строения по ТУ 5851-008-01388383-2002.